Özellikler
TS CEN/EN 13547 Türk Standartları Enstitüsü Onayı.
ISO 9001 Kalite Sistem Sertfikası.
Maksimum akışkanlık için tam geçiş.
Daha uzun ömür için kurum kaplama küre.
ISO 228 Dişi X Dişi bağlantı.
Kol üzerinde Açık-Kapalı işareti.
Maksimum güvenlik için PTFE conta ve EPDM O-ring.
Kalın PVC kaplı çelik kol.
Endüstriyel, Tesisat ve sulama sistemlerinde kullanılmak üzere geniş kullanım alanı.
Sıcaklık -10°C + 120°C
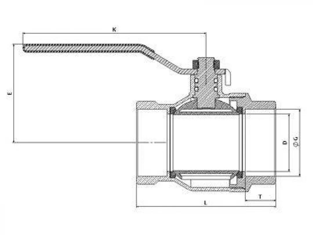
Teknik Bilgiler
| ANMA ÖLÇÜSÜ | DN (G) | d1 (mm) | L (mm) | K (mm) | t (mm) | E (mm) |
| 1-2" | 15 | 14-14 | 54 | 80 | 15 | 37 |
| 3/4" | 20 | 19-19 | 61 | 95 | 16 | 53 |
| 1" | 25 | 24-24 | 73 | 115 | 17 | 55 |
| 1 1/4" | 32 | 30-30 | 83 | 115 | 20 | 59 |
| 1 1/2" | 40 | 38-38 | 95 | 125 | 22 | 77 |
| 2" | 50 | 46-47 | 113 | 145 | 26 | 90 |
| 2 1/2" | 65 | 58-63 | 132 | 230 | 28 | 107 |
| 3" | 80 | 70-80 | 149 | 250 | 30 | 120 |
| 4" | 100 | 85-98 | 174 | 250 | 35 | 135 |

Tüm bilgileriniz 256bit SSL Sertifikası ile korunmaktadır.
© 2022 Tüm Hakları Saklıdır





















